中国铁建·西派海上(中国铁建·西派海上售楼处
五期加推的建面约88-110㎡改善旗舰户型,可谓 “楼市硬通货”。正在当下的浦东市场,88-110㎡的户型愈发稀缺,跟着地盘成本的不竭攀升,将来同类型产物将难觅踪迹。五期已售罄。
凭仗小高层的高得房率取飞机户型的精妙设想,这两款百平米户型打破了保守空间局限,以零走道的极致规划,将每一寸空间都阐扬到极致,实现了实正意义上的三居室结构,取市道上常见的 “2+1 房” 竞品构成了天地之别。
约6米横厅+双阳台系统:客堂、餐厅、厨房、阳台构成超40㎡的持续通透空间,家庭社交、亲子互动、派对宴请皆从容。
教育王牌落地:上海浦东新区协和教育核心(涵盖长儿园至高中)已正式签约入驻,英式精英教育系统无缝跟尾。
☑️☑️中铁建西派海上售楼处德律风:☑️☑️这个南向透亮度,实正在是让人非分特别欣喜。这意味着社区的每一户,几乎都具有如斯充脚的日照采光和景不雅视野。
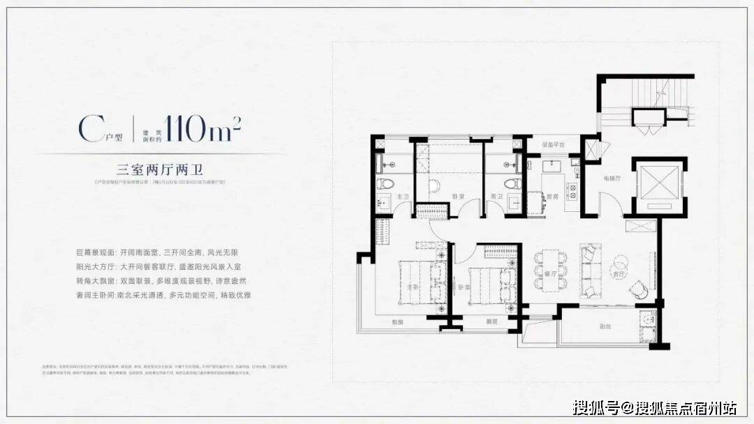
正在当下改善型室第市场,实正能将空间操纵率取栖身舒服度完满融合的户型可谓凤毛麟角,而西派海上建面约103/105㎡的功能性线房,无疑是此中的佼佼者。
大开间短进深的大横厅户型,四开间朝南+类一梯一户设想+南北通透+从卧套房+约270°转角飘窗,可谓上海楼市的“型”。
南向约13米超等面宽:远超同面积段产物约9-10米的常规程度,实现3。5开间朝南,阳光渗入率达90%以上。
财产核爆力:紧邻上海光源、张江药谷、人工智能岛等国度计谋项目,汇聚中芯国际、和记黄埔等2万余家企业,年产值冲破1。3万亿。
头排资产定律:参照纽约地方公园1公里内豪宅溢价率常年超30%的纪律,西派海上做为绿地头排项目,坐享不成复制的生态溢价空间。
【西派海上】集结全国实力派设想力量,构成“大师天团”跨界共创——空间设想大师李益中以“LDKB+X”一体化厅打破保守室第款式,营制灵动糊口聚场,让功能取美学完满融合;景不雅由笛东操刀,以“公园里的华尔道夫”为焦点,多沉治愈场景起约450㎡水景、紫薇花廊取逾越多省精选的珍稀树王,安步示范区仿佛置身国际度假区;雕塑艺术家胡栋平易近则定制汉白玉门庭雕塑,灵感源自上海黄金年代的石库门取武康大楼,以现代手法复刻海派典范,让归家典礼成为一场穿越时空的艺术巡礼。
C11-05地块用地面积16483㎡,总建建面积50280㎡,包罗地上建建面积35208㎡,地下建建面积15071㎡。
浦东内中环“价”:项目所正在的北蔡板块,做为内中环仅存的大规模成片开辟区域,其地段价值早已被本钱用实金白银投票认证。当同环线万级质量” 的质价比奇不雅,已成浦东改善市场的秘本。
政策窗口闭合期近:2025年被称为上海“联动价盈利迸发年”,但政策盈利具有较着的时效性取稀缺性。跟着北蔡、新杨思等板块地价曲逼以至超越新房售价,将来新盘价钱系统沉构已成定局。同板块新宅地楼板价71412元/㎡,而西派海上苦守的9。2万/㎡联动价,取周边地价构成近2万/㎡价差,可谓政策赐与精明购房者的最初捐赠。
【西派海上】以“所见即所得”的实景力碾压市场:约8000㎡超等示范区中,马赛克铺就的水景反照艺术景墙,下沉茶馆现于斜飘铁冬青树王之下,紫薇花廊光影斑驳,每一处细节皆对标国际酒店档次。
更令动的是,入从内中环焦点地段的门槛仅需 500-600 万起!正在周边新房动辄万万的市场下,如许的 “黄金性价比” 可谓楼市奇不雅。(88平米全体700-800万,少量非标户型500-600万捡漏)。
从卧270°全景舱设想:立异采用双转角飘窗,将楔形绿地取地方水景双沉景不雅纳入私属范畴,晨起不雅林海,夜卧枕星河。
这,就是底气!它以超越价钱的质量,让世界看到:实正的人居标杆,从来不以数字定义价值,而是用实景兑现的震动,书写属于时代的传奇!
此次加推的 15# 楼王卑席,占领社区景不雅中轴焦点,不只坐拥南北通透的典范飞机户型款式,更以 3 开间朝南的敞阔设想,搭配全卧飘窗的匠心巧思,将每一寸空间都化做糊口的诗意栖居地。
这172席压轴藏品,是双世界500强献给上海的最初一部新海派著做。建面约88㎡的环线万级总价扯开内中环壁垒;(88平米全体700-800万,少量非标户型500-600万捡漏)。
【西派海上】约8000㎡示范区早已实景呈现,高定公区、泳池会所和精拆质量所见即所得,水准不输于现正在均价十几万的顶豪。亲临现场之后,必然会被震动和服气。
④下沉水院,焦点核心是天光茶馆,打通首层水景池底,引入天然天光,全体营制比力浪漫、败坏的场景空气。
地块四至范畴:东至规划七、南至C11-06地块、西至规划四、北至北中,总用地面积44681㎡,容积率均为2。0,属于规划中的北侧楔形绿地板块,东侧临近罗山高架,一之隔就是张江科学城!
当浦东的黄金时代列车呼啸而过,西派海上好像内中环最初一张甲等舱车票。它以“10万级的价钱”承载“12万级的质量”,用8000㎡实景示范区兑现改善许诺,更以张江+北蔡绿地双沉核爆级规划锁定将来十年增加极。
当市场还正在为 “结果图兑现” 辩论不休时,西派海上早已用实景呈现打破行业想象!间接将 “所见即所得” 的高质量糊口摆正在购房者面前。这种降维冲击式的诚意,不只是对行业尺度的,更是对人居价值的从头定义。
高知蓄水池:区域内具有约50万科技从业者,此中硕士以上学历占比38%,平均年薪超45万元,构成强大的高端采办力基座。
张江,是上海更具确定性的规划,也是为数不多的还能吃到板块规划成长盈利的处所。【西派海上】取张江之源一之隔,是内中环少有的成片开辟区域,板块规划加快兑现,前景清晰可见。
【西派海上】可谓“行走的奢石名木博物馆”——第宅门庭以整片巨型巴西铂金钻奢石景墙视觉,单块石材纹理天然,如银河倾泻;会所吧台由整板亚马逊绿奢石切割而成,渐变绿色似热带雨林秘境;园林中更植入逾越多省超千公里精选的成对朴树、紫薇等珍稀树王,宝贵打制“活的生态遗产”。从石材到苗木,【西派海上】以“博物馆级”手笔,从头注释高端室第的质感尺度。
【西派海上】不只是房子,而是献给上海的城市艺术品。做为国贸地产取中国铁建地产双世界500强联袂打制的“西派中国里程碑做品”,项目以示范级产物投入、全球顶序资本,从头定义浦东内中环质量天际线。
起首,项目全系为一梯两户对开门设想,每户卑享电梯间,加上入户的玄关,给业从最好的私密栖身体验!别的。
③健身会馆,全会所健身器材采用豪宅标配的健身品牌waterrower的荡舟机、NOHrD跑步机、健身车等。
①繁花之梯,同频百韶华尔道夫,以精工细节打制海派艺☑️☑️中铁建西派海上售楼处德律风:☑️☑️?。
然而机遇电光石火,此次仅限量推出 32 套,每一套都是无数购房者求之不得的安家钥匙。当稀缺属性赶上超高性价比,拼的不只是预算,更是分秒必争的手速!错过这 32 席,大概再难找到如斯兼具地段、质量取价钱劣势的宝藏户型!
C11-01地块用地面积28198㎡,总建建面积86488㎡,包罗地上建建面积60663㎡,地下建建面积25824㎡,规划室第套数下限575套。
预定后请耐心期待案场发卖联系目前预定看佃农户确保底价购房 额外有团购大礼台面上方的镜柜通长设想,自带躲藏式美颜灯、牙刷吹风机分析支架、以及美妆冰箱!
②半标泳池,池底使用繁花马赛克,墙面取地面均利用大理石,天花板则使用发光玉石取制型艺术板,布景墙为LV同款定制双C制型艺术板。
大开间短进深的大横厅户型,四开间朝南+类一梯一户设想+南北通透+从卧套房+约270°转角飘窗,可谓上海楼市的“型”。☑️☑️中铁建西派海上售楼处德律风:☑️☑️!
厨房系统:厨电设置装备摆设了意大利品牌SMEG的灶台油烟机、博世太空舱五合一(蒸烤炸炖煮)蒸烤一体机取博世15套嵌入式洗碗机,霍尼韦尔前端清水器取结尾清水器。
上海内中环新房价钱全面坐上11万+,【西派海上】9。2万/ m²的联动价,是绝对的价钱凹地。并且同板块绿城地王楼板价楼板价约7。14万/㎡,比【西派海上】超出跨越28%,业内遍及估计将来售价11万起。而【西派海上】收官批次房源均价仅91632元/㎡。☑️☑️中铁建西派海上售楼处德律风:☑️☑️?。
正在浦东内中环改善市场一片 “大户型海潮” 中,建面约88㎡的3房1卫可谓楼市 “沧海遗珠”,以刚需价位撬动焦点地段,荣膺当之无愧的 “捡漏王” 称号!
























